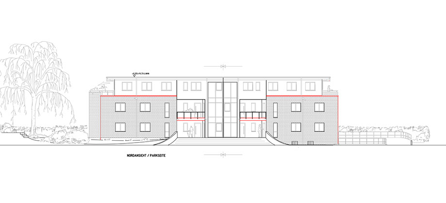
EXKLUSIVE WOHNUNGEN IN EINEM 10-FAMILIENHAUS
im Zentrum von Steinhagen
Gebaut wurde ein 10-Familienhaus in moderner Bauweise mit 2 großzügigen Staffelgeschosswohnungen.
Die Wohnungen haben eine kontrollierte Be- und Endlüftungsanlage, Fußbodenheizung, elektrische Rollläden, großzügige Balkone erhalten.
Das Haus liegt inmitten des Schlichte Parkes am Kirchplatz in Steinhagen.
Wohnflächen:
Erd- und Obergeschoss:
Wohnung 5 = 108,57 m²
Wohnung 6 = 61,74 m²
Wohnung 7 = 61,74 m²
Wohnung 8 = 108,57 m²
Penthouse:
Wohnung 9 = 126,57 m²
Wohnung 10 = 126,57 m²
BAUHERR:
Annette Schlichte Steinhäger Stiftung
ARCHITEKT:
Hans-Jürgen Brakhage
Dipl. Ing. Architekt
<
>
DOWNLOAD
Start | Impressum | Datenschutzerklärung | Kontakt | © Horst Neugebauer